空き家バンク 登録物件一覧
|
【登録番号】 |
第7-124号 |
【種別】 |
売却 |
![]() |
![]() |
||
| 売却希望価格 | 380万円 | 希望賃料 | |
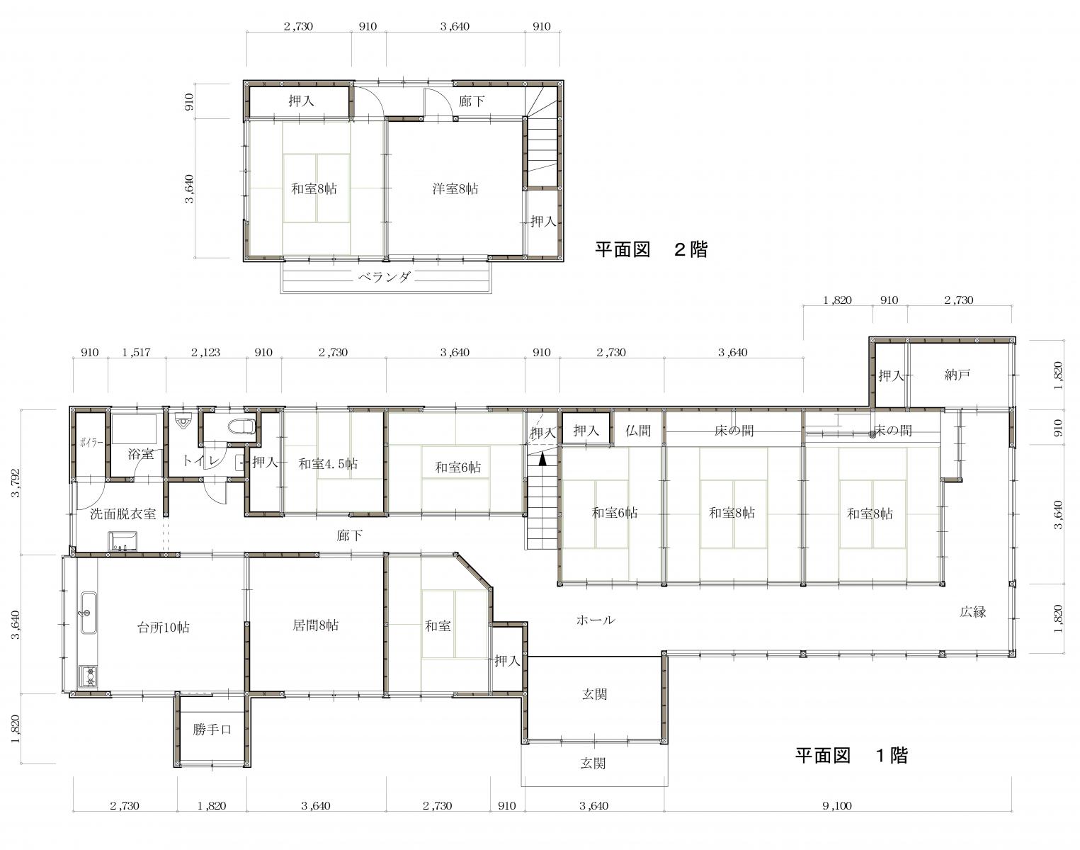
| 物件所在地 | 能代市字寿域長根 | 間取り | 3DK |
| 建築年 | 昭和43年 | 建物の状態 | 多少の補修が必要 |
| 補修費用負担 |
入居者負担 |
||
| 付随農地 | なし | ||
|
【登録番号】 |
第7-123号 |
【種別】 |
売却 |
![]() |
![]() |
||
| 売却希望価格 | 580万円 | 希望賃料 | |
| 物件所在地 | 能代市字下関 | 間取り | 9DK |
| 建築年 | 昭和49年 | 建物の状態 | 多少の補修が必要 |
| 補修費用負担 |
入居者負担 |
||
| 付随農地 | なし | ||
|
【登録番号】 |
第7-122号 |
【種別】 |
売却 |
![]() |
![]() |
||
| 売却希望価格 | 390万円 | 希望賃料 | |
| 物件所在地 | 能代市末広町 | 間取り | 5LDK |
| 建築年 | 昭和50年 | 建物の状態 | 補修不要 |
| 補修費用負担 |
ー |
||
| 付随農地 | なし | ||
|
【登録番号】 |
第7-203号 |
【種別】 |
売却 |
![]() |
![]() |
||
| 売却希望価格 | 428万円 | 希望賃料 | |
| 物件所在地 | 能代市花園町 | 間取り | 6DK |
| 建築年 | 昭和50年 | 建物の状態 | 多少の補修が必要 |
| 補修費用負担 |
入居者負担 |
||
| 付随農地 | なし | ||
|
【登録番号】 |
第7-121号 |
【種別】 |
売却 |
![]() |
![]() |
||
| 売却希望価格 | 1,400万円 | 希望賃料 | |
| 物件所在地 | 能代市花園町 | 間取り | 5SDK |
| 建築年 | 平成5年11月 | 建物の状態 | 多少の補修が必要 |
| 補修費用負担 |
入居者負担 |
||
| 付随農地 | なし | ||
|
【登録番号】 |
第7-202号 |
【種別】 |
売却 |
![]() |
![]() |
||
| 売却希望価格 | 145万円 | 希望賃料 | |
| 物件所在地 | 能代市字鶴形 | 間取り | 6DK |
| 建築年 | 昭和50年10月 | 建物の状態 | 多少の補修が必要 |
| 補修費用負担 |
入居者負担 |
||
| 付随農地 | なし | ||
|
【登録番号】 |
第7-120号 |
【種別】 |
売却 |
![]() |
![]() |
||
| 売却希望価格 | 50万円 | 希望賃料 | |
| 物件所在地 | 能代市字悪戸 | 間取り | 4DK |
| 建築年 | 昭和52年9月 | 建物の状態 | 大幅な補修が必要 |
| 補修費用負担 |
入居者負担 |
||
| 付随農地 | なし | ||
|
【登録番号】 |
第7-118号 |
【種別】 |
売却 |
![]() |
|||
| 売却希望価格 | 250万円 | 希望賃料 | |
| 物件所在地 | 能代市字寿域長根 | 間取り | 5DK |
| 建築年 | 昭和56年 | 建物の状態 | 多少の補修が必要 |
| 補修費用負担 |
入居者負担 |
||
| 付随農地 | なし | ||
|
【登録番号】 |
第7-117号 |
【種別】 |
売却 |
![]() |
![]() |
||
| 売却希望価格 | 200万円 | 希望賃料 | |
| 物件所在地 | 能代市檜山字檜山町 | 間取り | 8LDK |
| 建築年 | 昭和47年12月 | 建物の状態 | 多少の修繕が必要 |
| 補修費用負担 |
入居者負担 |
||
| 付随農地 | なし | ||
|
【登録番号】 |
第7-116号 |
【種別】 |
売却 |
![]() |
![]() |
||
| 売却希望価格 | 100万円 | 希望賃料 | |
| 物件所在地 | 能代市常盤字町辺 | 間取り | 7DK |
| 建築年 | 昭和53年 | 建物の状態 | 大幅な補修が必要 |
| 補修費用負担 |
入居者負担 |
||
| 付随農地 | なし | ||
|
【登録番号】 |
第7-115号 |
【種別】 |
売却 |
![]() |
![]() |
||
| 売却希望価格 | 450万円 | 希望賃料 | |
| 物件所在地 | 能代市鰄渕字古川反 | 間取り | 6LDK |
| 建築年 | 昭和52年6月 | 建物の状態 | 多少の修繕が必要 |
| 補修費用負担 |
入居者負担 |
||
| 付随農地 | なし | ||
|
【登録番号】 |
第7-114号 |
【種別】 |
売却 |
![]() |
|||
| 売却希望価格 | 450万円 | 希望賃料 | |
| 物件所在地 | 能代市落合字中大野 | 間取り | 4K |
| 建築年 | 昭和52年 | 建物の状態 | 大幅な補修が必要 |
| 補修費用負担 |
入居者負担 |
||
| 付随農地 | なし | ||
|
【登録番号】 |
第7-113号 |
【種別】 |
売却 |
![]() |
![]() |
||
| 売却希望価格 | 50万円 | 希望賃料 | |
| 物件所在地 | 能代市二ツ井町飛根字羽立 | 間取り | 7DK |
| 建築年 | 昭和54年7月 | 建物の状態 | 大幅な補修が必要 |
| 補修費用負担 |
入居者負担 |
||
| 付随農地 | なし | ||
|
【登録番号】 |
第7-112号 |
【種別】 |
売却 |
![]() |
|||
| 売却希望価格 | 50万円 | 希望賃料 | |
| 物件所在地 | 能代市能代町字中川原 | 間取り | 9DK |
| 建築年 | 昭和42年6月 | 建物の状態 | 大幅な補修が必要 |
| 補修費用負担 |
入居者負担 |
||
| 付随農地 | なし | ||
|
【登録番号】 |
第7-108号 |
【種別】 |
売却 |
![]() |
![]() |
||
| 売却希望価格 | 50万円 | 希望賃料 | |
| 物件所在地 | 能代市二ツ井町字上山崎 | 間取り | 7LDK |
| 建築年 | 築年月日不詳 | 建物の状態 | 大幅な修繕が必要 |
| 補修費用負担 |
入居者負担 |
||
| 付随農地 | なし | ||
|
【登録番号】 |
第7-107号 |
【種別】 |
売却 |
![]() |
![]() |
||
| 売却希望価格 | 300万円 | 希望賃料 | |
| 物件所在地 | 能代市東町 | 間取り | 6DK |
| 建築年 | 昭和37年 | 建物の状態 | 多少の補修が必要 |
| 補修費用負担 |
入居者負担 |
||
| 付随農地 | なし | ||
|
【登録番号】 |
第7-105号 |
【種別】 |
売却 |
![]() |
![]() |
||
| 売却希望価格 | 300万円 | 希望賃料 | |
| 物件所在地 | 能代市向能代 | 間取り | 7LDK |
| 建築年 | 昭和51年 | 建物の状態 | 大幅な補修が必要 |
| 補修費用負担 |
入居者負担 |
||
| 付随農地 | なし | ||
|
【登録番号】 |
第7-104号 |
【種別】 |
売却 |
![]() |
![]() |
||
| 売却希望価格 | 728万円 | 希望賃料 | |
| 物件所在地 | 能代市盤若町 | 間取り | 6LDK |
| 建築年 | 昭和41年 | 建物の状態 | 補修不要 |
| 補修費用負担 |
入居者負担 |
||
| 付随農地 | なし | ||
|
【登録番号】 |
第7-201号 |
【種別】 |
売却 |
![]() |
![]() |
||
| 売却希望価格 | 200万円 | 希望賃料 | |
| 物件所在地 | 能代市二ツ井町字山根 | 間取り | 5DK |
| 建築年 | 昭和40年 | 建物の状態 | 多少の補修が必要 |
| 補修費用負担 |
入居者負担 |
||
| 付随農地 | なし | ||
|
【登録番号】 |
第7-103号 |
【種別】 |
売却 |
![]() |
![]() |
||
| 売却希望価格 | 250万円 | 希望賃料 | |
| 物件所在地 | 能代市花園町 | 間取り | 6DK |
| 建築年 | 昭和51年 | 建物の状態 | 多少の補修が必要 |
| 補修費用負担 |
入居者負担 |
||
| 付随農地 | なし | ||
|
【登録番号】 |
第6-202号 |
【種別】 |
売却 |
![]() |
![]() |
||
| 売却希望価格 | 200万円 | 希望賃料 | |
| 物件所在地 | 能代市字養蚕 | 間取り | 6K |
| 建築年 | 昭和52年4月 | 建物の状態 | 大幅な補修が必要 |
| 補修費用負担 |
入居者負担 |
||
| 付随農地 | なし | ||
|
【登録番号】 |
第6-121号 |
【種別】 |
売却 |
![]() |
![]() |
||
| 売却希望価格 | 490万円 | 希望賃料 | |
| 物件所在地 | 能代市栄町 | 間取り | 8DK |
| 建築年 | 昭和44年3月 | 建物の状態 | 多少の補修が必要 |
| 補修費用負担 |
入居者負担 |
||
| 付随農地 | なし | ||
|
【登録番号】 |
第6-119号 |
【種別】 |
売却 |
![]() |
|||
| 売却希望価格 | 258万円 | 希望賃料 | |
| 物件所在地 | 能代市字寿域長根 | 間取り | 6DK |
| 建築年 | 昭和45年6月 | 建物の状態 | 多少の補修が必要 |
| 補修費用負担 |
入居者負担 |
||
| 付随農地 | なし | ||
|
【登録番号】 |
第6-118号 |
【種別】 |
売却 |
![]() |
![]() |
||
| 売却希望価格 | 200万円 | 希望賃料 | |
| 物件所在地 | 能代市落合字中大野台 | 間取り | 6K |
| 建築年 | 昭和55年 | 建物の状態 | 大幅な補修が必要 |
| 補修費用負担 |
入居者負担 |
||
| 付随農地 | なし | ||
|
【登録番号】 |
第6-117号 |
【種別】 |
賃貸 |
![]() |
![]() |
||
| 売却希望価格 | 希望賃料 | 70,000円 | |
| 物件所在地 | 能代市字藤山 | 間取り | 5DK |
| 建築年 | 昭和61年11月 | 建物の状態 | 補修不要 |
| 補修費用負担 | |||
| 付随農地 | なし | ||
|
【登録番号】 |
第6-109号 |
【種別】 |
売却 |
![]() |
![]() |
||
| 売却希望価格 | 130万円 | 希望賃料 | |
| 物件所在地 | 能代市鰄渕字一本柳 | 間取り | 5LDK |
| 建築年 | 昭和53年5月 | 建物の状態 | 多少の補修が必要 |
| 補修費用負担 |
入居者負担 |
||
| 付随農地 | なし | ||
|
【登録番号】 |
第6-108号 |
【種別】 |
売却 |
![]() |
![]() |
||
| 売却希望価格 | 100万円 | 希望賃料 | |
| 物件所在地 | 能代市日吉町 | 間取り | 9DK |
| 建築年 | 昭和31年4月 | 建物の状態 | 大幅な補修が必要 |
| 補修費用負担 |
入居者負担 |
||
| 付随農地 | なし | ||
|
【登録番号】 |
第6-107号 |
【種別】 |
売却 |
![]() |
![]() |
||
| 売却希望価格 | 350万円 | 希望賃料 | |
| 物件所在地 | 能代市字柏子所 | 間取り | 7LDK |
| 建築年 | 昭和42年9月 | 建物の状態 | 多少の補修が必要 |
| 補修費用負担 |
入居者負担 |
||
| 付随農地 | なし | ||
|
【登録番号】 |
第6-201号 |
【種別】 |
売却 |
![]() |
![]() |
||
| 売却希望価格 | 200万円 | 希望賃料 | |
| 物件所在地 | 能代市浅内字大坪 | 間取り | 2K |
| 建築年 | 昭和58年9月 | 建物の状態 | 多少の補修が必要 |
| 補修費用負担 |
入居者負担 |
||
| 付随農地 | あり | ||
|
【登録番号】 |
第5-203号 |
【種別】 |
売却 |
![]() |
![]() |
||
| 売却希望価格 | 300万円 | 希望賃料 | |
| 物件所在地 | 能代市景林町 | 間取り | 3DK |
| 建築年 | 昭和48年9月 | 建物の状態 | 多少の補修が必要 |
| 補修費用負担 |
入居者負担 |
||
| 付随農地 | なし | ||
|
【登録番号】 |
第5-202号 |
【種別】 |
売却 |
![]() |
![]() |
||
| 売却希望価格 | 100万円 | 希望賃料 | |
| 物件所在地 | 能代市字鶴形 | 間取り | 5DK |
| 建築年 | 平成2年7月 | 建物の状態 | 多少の補修が必要 |
| 補修費用負担 |
入居者負担 |
||
| 付随農地 | なし | ||
|
【登録番号】 |
![]() |
|
【登録番号】 |
![]() |
|
【登録番号】 |
![]() |
|
【登録番号】 |
![]() |
|
【登録番号】 |
![]() |
|
【登録番号】 |
![]() |
|
【登録番号】 |
![]() |
|
【登録番号】 |
![]() |
|
【登録番号】 |
![]() |
|
【登録番号】 |
![]() |
|
【登録番号】 |
![]() |
|
【登録番号】 |
![]() |
|
【登録番号】 |
![]() |
|
【登録番号】 |
![]() |
|
【登録番号】 |
![]() |
|
【登録番号】 |
![]() |
|
【登録番号】 |
![]() |
|
【登録番号】 |
![]() |
|
【登録番号】 |
![]() |
|
【登録番号】 |
![]() |
|
【登録番号】 |
![]() |
|
【登録番号】 |
![]() |
|
【登録番号】 |
![]() |
|
【登録番号】 |
![]() |
|
【登録番号】 |
![]() |
|
【登録番号】 |
![]() |
|
【登録番号】 |
![]() |
.jpg)
















.jpg)























.jpg)










.jpg)




.jpg)

























